Varikontie 9
Vapaata tilaa
Varikontie 9, Nastola
1991, laajennettu 1997
Henkilökunta- ja asiakaspysäköinti
3741
2500 + 200
Hyvä tietää:
Tuotantohallitilaa vuokrattavana hyvillä ominaisuuksilla ja hyvällä sijainnilla! Samassa rakennuksessa myös toimistotilaa vapaana.
Tiedot
Lahden Nastolassa Varikontien teollisuusalueella Varikontie 9:ssä oleva kiinteistö sijaitsee omalla 9 281 neliön tontilla. Käyttämätöntä rakennusoikeutta jäljellä 1 930 m2
Tuotantohallitilaa vuokrattavana 2500 neliötä:
- Hallitilan vapaa korkeus 6,5 m, nostimen alle 5,6
- Hallitilassa mm. 3 kpl siltanostimia (2 kpl 10 tn ja 1 kpl 5 tn siltanostin).
- Lattiakantavuus hyvä. Neljä isoa ajo-ovea.
- Nosto-ovien leveydet 4,2 m ja 4,5 m.
- Hallin kokonaisuus 2500 m2 sis. työnjohto- ja toimistotilat keskellä hallia.
- Hallitiloissa paineilmaverkosto valmiina.
Hyvät pysäköinti- ja lastaustilat pihalla.
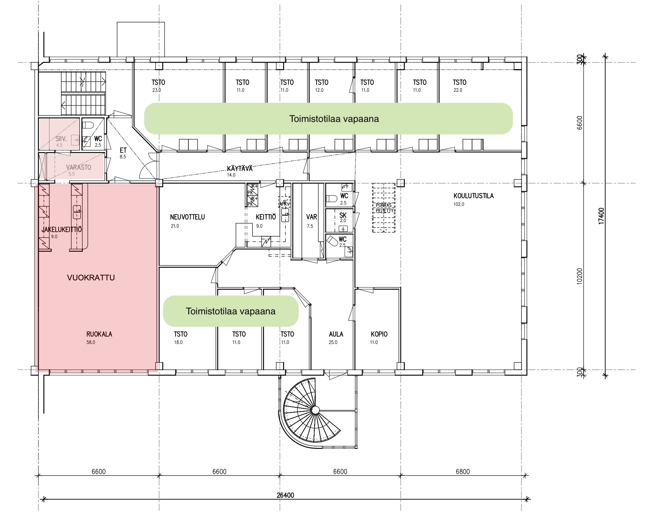
Toimistotilaa vapaana!
- 200 m² toimistotilaa
- 22 m² toimitilakokonaisuus
- 7,5 m² varasto
- 18 m² toimisto
Kiinteistö sijaitsee loistavalla sijainnilla valtatie 12:n varrella. Asiakas- ja henkilökuntapysäköintiin hyvät pysäköintitilat pihalla.
Sijainti kartalla

Ota yhteyttä
Yhteyshenkilö
Miika Laakso
Asset Manager
miika.laakso@spatium.fi
Asiakkuudet
Markkinointi- ja viestintä
Kiinteistöjen kaupallinen kehittäminen ja vuokraus
Toimitusjohtajan varahenkilö
Lahden Jäähalli Oy:n toimitusjohtaja ja tapahtuma- ja tilavuokraus
Jätä yhteydenottopyyntö
"*" näyttää pakolliset kentät
